w/ 024 DJ
type: object / image / text
function: exhibition
location: WATARI-UM, jingumae, tokyo
floor: 100m2(2F), 40m2(3F), 50m2(4F)
collaborator: tanuki(graphic), ort(installation), sunjunjie.studio(CGI), and so on…
date: 2026.2.15 – 6.7(7.12)
publication: casa brutus 2604 p.213, jt2604 p.152, pen2605 p.167, numéro2605 p.134, asahi260317, mainichi260406, ap
/
Curatorial design and exhibition text for the Watari Museum of Contemporary Art’s “JUDD | MARFA” exhibition. This marks Judd’s first solo exhibition in Japan in nearly 25 years, as well as his first solo exhibition at the Watari Museum (formerly Galerie Watari) in 50 years.
ワタリウム美術館「ジャッド|マーファ展」の会場構成と、会場テキストの執筆。本展は日本における約四半世紀ぶりのジャッドの個展であり、半世紀ぶりのワタリウム(当時、ギャルリー・ワタリ)でのジャッドの個展になる。

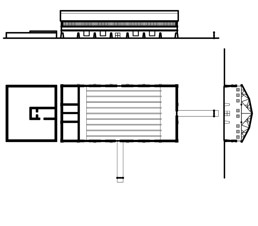
The Watari Museum of Contemporary Art, designed by Mario Botta, features a simple geometric form. However, its three-dimensional composition is complex. Windows are arranged symmetrically across the façade, excluding the stairwell on the left side, relative to the overall isosceles right triangle plan. The second and third floors are connected via a double-height space, and light pours in through the fourth-floor windows. Applying Judd’s concept of “reasonable asymmetry,” which he sought in spatial design, to this complex spatial composition born from the collision of simple planar forms and symmetrical elevations, we attempt to arrange the architectural elements and artworks themselves as “clear” entities.
ボッタが設計したワタリウム美術館はシンプルな幾何学形状で構成された平面をもつが、直角二等辺三角形の全体平面に対して、ファサードは向かって左側の階段室を除いた部分でシンメトリーを構成するように窓が配置され、さらに室内でも吹き抜けを介して2・3Fは接続され、4Fの窓から光が注ぐなど、その立体的な構成は複雑である。このシンプルな平面形状とシンメトリーな立面の衝突によってうまれる複雑な空間構成を、ジャッドが空間に対して求めていた「合理的アシンメトリー」という概念を応用し、建築要素・作品同士をできる限り自律したもの、「明快な」ものとして配置することを試みる。

JUDD|MARFA installation view, watarium, 2026, photo: keizo kioku
left: untitled 1990 shizuoka prefectural museum of art
right: untitled 1989 kirishima open-air museum
Specifically, works will be displayed on the brick walls along the exterior façade, while text elements, such as captions, will be displayed on concrete surfaces, like elevator cores. These elements will organize the sequence of visitors. The layout will ensure that viewers have sufficient distance from the exhibits. This means adjusting the layout so that walls forming the long sides of triangles or cylindrical walls do not obstruct the view. The layout and fixture placement will blend with the spatial quality of Botta’s architecture, achieving maximum effect with minimal intervention. This means arranging two-dimensional works symmetrically or installing boundaries that correspond with the black baseboards.
具体的には、外壁面のレンガ壁に作品を展示し、エレベーターコアなど、コンクリートの壁面にキャプションなどのテキスト類を展示し、動線を整理する。展示品に対して鑑賞者が十分な引きを取れるように展示品をレイアウトする。(つまり、三角形長辺の壁やシリンダー壁が鑑賞の妨げにならないように調整する。)ボッタの建築の空間の質に馴染み、最小限の操作で最大限の効果を得るために、レイアウト、什器を配置する。(つまり、平面作品をシンメトリーに配置したり、黒の入り巾木に呼応するように、結界を設置したりする。)
/
PV: But in the Block, you have beds all over the place.
DJ: Yes, because in order to live with the art, you have to be relatively comfortable. Also, I like for the rooms that have art to have some sort of function. It doesn’t have to be so great, but if you can sit there and have a drink, or eat, or lie down, or read, then you look at the work. Because you can’t look at the art, I think, as we’re supposed to in museums and galleries,really. You walk in, you look at it, you walk out, and that’s it. I can’t see anything that way.
(Donald Judd Interviews, p.548.)
アートと共に住むには、ある程度快適である必要がある。それに、作品の置いてある部屋には何らかの機能を持たせたい。大げさなものでなくても、そこに座って飲み物を飲んだり、食事をしたり、横になったり、読書をしたりできるなら、自然と作品を見ることになる。美術館やギャラリーで求められるような鑑賞の仕方——中に入って作品を見て、出て行くだけ——では、私には何も見えてこないからだ。
/
The exhibition text explains 13 keywords and seven architectural projects (see the list below). The text aims to explain Judd’s transition from two-dimensional paintings to three-dimensional objects, his relocation from New York to Marfa (and then Europe), and his approach to materials, exhibitions, and furniture as simply as possible. As visitors ascend the Watarium floors, they will gain a deeper understanding of Judd’s work. The second and third floors have exhibits consisting of paintings, objects, and furniture, while the fourth floor has a section introducing documents from Gallery Watari and Marfa.
会場テキストは13のキーワードと7つの建築プロジェクトについて解説することにした(下記リスト参照)。ジャッドが二次元平面から三次元立体へと移行していったこと、ニューヨークでの活動からマーファ(、それからヨーロッパ)へと移動したこと、素材・展示・家具についての彼の考え方をなるべく平易に解説することに努め、ワタリウムのフロアを上っていくごとに、ジャッドの制作についての理解が深まることを意図している。2F・3Fの展示物はペインティング・立体作品・家具で構成し、4Fはギャルリー・ワタリとマーファの資料を紹介するコーナーとした。

- はじめに(Introduction)
- 3次元のオブジェクト(Three-dimensional objects)
- ニューヨーク(New York)
- 2次元平面から3次元立体へ(From paintings to objects)
- 明快な色彩としての赤(Red as a color that defines objects)
- 素材について(Materials)
- 良い椅子とは良い椅子なのだ(A good chair is a good chair)
- パーマネントインスタレーション(Permanent installation)
- ギャルリー・ワタリ「ジャッド展」(Exhibition in Galerie Watari)
- マーファ(Marfa)
- 建築的介入について – 初期構想・空間の分割・アートと生活の融合
(Judd’s architectural interventions – Initial Idea / Division of Space / Integration of Art and Living) - 建築的介入について – 最小限の介入としての開口部
(Judd’s architectural interventions – Altering Openings as Minimum Intervention) - 十字扉のCG制作について(Pivot door)
- 初期構想(Ideas for Enclosure)
- カサ・ペレス(Casa Perez)
- マンサナ・デ・チナティ(La Mansana de Chinati / the Block)
- アリーナ(Arena)
- チェンバレン・ビルディング(Chamberlain Building)
- アート・スタジオ(Art Studio)
- アヤラ・デ・チナティ(Ayala de Chinati)
/
Doing good architecture for less money I think is the main idea. (DJI, p.549)
より少ない予算で優れた建築を実現することこそが、核心にある考え方だと思う。
/
As Judd himself stated, his secondary interest in architecture was precisely what made the quality of space at Marfa possible. While it is difficult to recreate such a space in central Tokyo, Judd’s attitude toward space may resonate with the approach of striving to produce maximum effect with minimal intervention. Reconsidering this in contemporary Japan is significant not only for art, but also for architecture.
ジャッド自身がいう通り、建築への興味が二の次であったからこそ実現できた空間の質が、マーファにはある。その再現を東京の中心で再現することは困難だが、最小限の操作で最大限の効果を生み出すように努めたその姿勢は、ジャッドの空間に対する態度と通底しているのかもしれないし、現代の日本で再考してみる意味が、美術の領域だけでなく、建築分野にとってもあるだろう。

/
The one-quarter swiveled at the Chamberlain Building, then one-half of a door swiveled, so that led to the idea of a whole swiveling gate. (DJI, p.551)
チェンバレン・ビルディングでは[十字扉の]4分の1が回転し、その後扉の半分が回転するようになったので、十字扉全体が回転することを思いついたのです。

By creating the exhibition text in conjunction with the venue layout, I became deeply involved in selecting the works, effectively taking on a curatorial role. Consequently, the “JUDD | MARFA” exhibition can also be viewed as an architectural exhibition curated by an architect. In that sense, the spaces on the second and third floors feel particularly opulent, and the archival display on the fourth floor is comparable to conventional architectural exhibitions. The attempt to exhibit the quality of space that Judd aspired to may have been achieved by employing the form of an exhibition.
会場テキストを、会場レイアウトと併せて制作したことにより、結果として、作品選定などにも深く関わり、キュレーションの役割も果たしてしまったと言える。そうすると、「ジャッド|マーファ展」というのは、建築家がキュレーションをした建築展としての鑑賞も可能である。その場合、2F・3Fの空間は非常に贅沢で、4Fの資料展示もまた、慣習的な建築展と比較することもできるだろう。ジャッドが志した空間の質を展示しようという試みは、展覧会という形式を援用しながら成し遂げられたのかもしれない。



/
_25.9.11
前日、駆け足でブロード美術館とドジャースタジアムでの観戦を楽しむ。ブロードはリヒテンシュタインがとてもよく観える空間。ドジャースタジアムはアメリカの娯楽の極地だと感じる。どちらもスケールがやはりアメリカンだ。
LAXからエル・パソ空港へフライト。エル・パソから車で3時間かけて、マーファへ向かう。時差がさらに1時間ずれることにより、チナティ財団の二人をとても待たせてしまうことになる。午後5時ごろにマーファに到着。
8年ぶりのマーファ。8年越しのカイトリンとティムは歓待してくれた。急ぎ足でチナティ・ファウンデーション。

Artillery ShedsとThe Arena、それからDan FlavinとJohn Chamberlainの恒久展示を観てまわる。Artillery Shedsは雨漏りがするらしく、これから大規模修繕がはじまるらしい。維持することは大変だ。夕方に観るThe Arenaは光が美しい。それから前回はジャッド研究に専念していたこともあったからか、今回はフレイヴィンのパーマネント・インスタレーションがよく観えた。一級品だと思った。展示が変わらずとも、光と鑑賞者の見方は変わり続ける、そんなことを感じたマーファ1日目だった。
ティムと明後日もまた会うことを約束し、足早に今日は解散。明日のフレイヴィン・ジャッド、レイナー・ジャッドとの会合を控え、少し緊張が走るディナータイムを同伴者と過ごした。
ところでティムのガイドツアーも一級品である。詩人である彼は、マーファで本屋と映画館を運営し(経営に疲れたからそんなにオープンしていないよと彼は言っていたが)、ボランティアとしてチナティのツアーを個人的にしているみたいだが、言葉を大切にしている彼のツアーはこのキャプションが一切ないマーファの空間を味わうときのオーディオ・ガイドとして、非常にはまっている。ジャッドの生前から、この空間にはキャプションはなく、スタッフがガイドツアーをしていたのだろうか。その辺りのモットーについては、もう少し聞いてみてもよかったかもしれない。

アリーナの開口部は一部、塞がれている。長手方向の開口部はわずかなニッチを設けながら塞がれているのに対して、短手方向の開口部はニッチを設けず、スムースに塞がれている。これがジャッドのジェントルなリノベーションなのだと、ティムは言う。
カイトリンは、8年前にマーファに来たときはジャッド財団のスタッフで、私の研究のアシスタントを親切にしてくれたのだが、今回はチナティ財団のディレクターになっていた。ジャッド財団にいたときはファンデーション所有のプロパティーの管理・公開に従事していたけれど、チナティに異動してからはアーティスト・イン・レジデンスなど、外部との交流もあり、やりがいがあるよと言っていた。
_25.9.12
朝からジャッド財団。まずはブロック(マンサナ・デ・チナティ)を見学する。
マーファは今年、ながい旱魃の期間のあとの雨季が訪れているようで、緑が多い。ブロック内部の植物も生い茂っていた。
ウェストビルディングのパーマネント・インスタレーションの合理的アシンメトリーについて、再確認する。ベンチの位置が、合理的アリンメトリーを示唆する重要な位置だったのだ!

ブロック全体を取り囲む外壁は一部、崩落していて、こちらの修繕も今後おこなっていくとのこと。
Art Studioが同伴者には一番響いていた。ジャッドのスタディやサンプルの軌跡。ここの什器などを実測する。普段インストールされていて見えない作品の背面が見える面白さは、ジャッドが壁掛けの作品を意図していながらも、床置きで設置することにした初期の判断にも通じる。
午後、ジャッド財団とフレイヴィンと打合せ。大量のスケッチは見応えがある。ギャラリーワタリとのやりとりの資料も残っており、この辺りの考察もできるといいなと思っている。
_25.9.13
朝9時に集合して、Casa Perezへ向かう。車を飛ばして1時間ほど、舗装もなくなり、乾燥した地形の上をただただ移動していく。
既存の家屋に、最小限の介入。附属の小屋を設置に、水回りをまとめる。ベッドなど、いくつかのジャッドデザインの家具。屋外に3つのパーゴラ。ここまでは写真でも確認していたが、奥に小さな庭があるのは行くまで知らなかった。

ベンチから、庭越しに、小屋を眺める。この視点に立ったとき、ジャッドがベンチを置く位置の視点を感じ、土地を破壊することを忌み嫌ったジャッドの気持ちが少しわかった気がした。
ジャッドは主にここには一人で滞在していたようだ。夜はどんな空気なんだろうか。できれば泊まってみたいと思った。
午後は撮影しにジャッド財団とチナティ財団を再度まわる。
_25.9.14
着た道を逆走するように、マーファからエル・パソ、そしてLAXへ。LACMAでの展示、fictions of displayを観る。マイケルフリードのtheatricalityというジャッドや同時代の作品を批判した用語を再度引用し、演劇的な映像作品とジャッドの作品を併置させて、そのシアトリカリティを浮かび上がらせようとするコーナーがあった。私はフリードの批判はロバート・モリスなどの作品には当てはまる指摘だなと思いつつ、ジャッドの作品にはモノそのものの現前が現れていると思っているので、その批判はどうなんだろうと思っているので、そもそも懐疑的なのだが、映像とジャッドの立体作品の併置は意欲的な展示方法としてまだいいとして、この間に合板でできたベンチを配置していたのは流石にシニカルすぎるだろうと感じた。ユーモアならまだしも、シニカルになってしまうのは、美術館側にモノそのものを見せる気持ちがあまりにもないように感じ、マーファからの帰りであることも相まって、あまり感心できなかった。一方で、LAの美術館のコレクションの大半はコレクターの寄付から成り立っていて、無料で観れる。からこそそんな断片化した作品群から物語をつくるためのキュレーションなんだなとも、同時に思う。
ところで、MOCAの立ち方は大分医師会館のそれと近しいかも?と思ったり。渋い立ち方だなと思った。
_25.9.15
mike kelly foundation, lacma, alan hergott 邸で会食。
michael maltzan さんにsmokeのブックレットをお渡しする。
_25.9.16
hammer museum, regen project, hauser & wirth。
ギャラリーが美術館を超えていた。
